Venta de casa en Pasaje de l´Estel , Vacarisses Barcelona

Ref: 02662

Estado: Buen estado

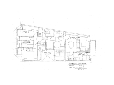
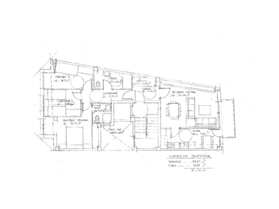
Superfície: 90 m2

Habitaciones: 0

Baños: 1

Características

Calefacción Garaje Acceso minusválidos Aire acondicionado Amueblado Armarios Ascensor Balcón Exterior Jardín Patio Piscina Terraza Trastero

390.000 €

(90 m2 - 4.333,33 €/m2)

Descripción

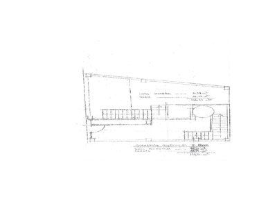
En venta casa en terreno de 1.100m². Con proyecto de ampliación iniciado. Actualmente su interior es diáfano 90m², dispone de amplia cocina office, baño con ducha, calefacción (gasoil), carpintería exterior (aluminio), suelos: parquet, garaje 20m². Dispone de aljibe (capacidad para almacenar 25.000 litros) y pozo. Vistas a Montserrat. Ubicada en Torre Blanca ll tocando al centro. En venta casa en terreno de 1.100m². Con proyecto de ampliación iniciado. Actualmente su interior es diáfano 90m², dispone de amplia cocina office, baño con ducha, calefacción (gasoil), carpintería exterior (aluminio), suelos: parquet, garaje 20m². Dispone de aljibe (capacidad para almacenar 25.000 litros) y pozo. Vistas a Montserrat. Ubicada en Torre Blanca ll tocando al centro.

Certificado energético

Consumo:
112 kWh/m2 año
Emisiones:
56 kg CO2/m2 año
Inmueble gestionado por:
EGARPIS