Venta de dúplex en Sant Cugat, Rubí Barcelona

Ref: VP0110

Estado: Nuevo

Superfície: 1 m2

Habitaciones: 0

Baños: 2

Características

Aire acondicionado Ascensor Balcón Calefacción Garaje Terraza Acceso minusválidos Amueblado Armarios Exterior Jardín Patio Piscina Trastero

232.000 €

(1 m2 - 232.000,00 €/m2)

Descripción

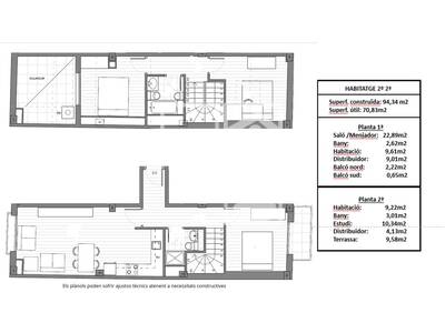
¿Te imaginas vivir en un piso nuevo en el centro de Rubí?. Ahora es posible, no dejes escapar la oportunidad de estrenar piso y disfrutar de la calidad de vida que te ofrece vivir rodead@ de todos los servicios y comercios, supermercados, escuelas, a un paso del mercado municipal y a 5 minutos andando de la estación de los Ferrocarriles Catalanes. Todavía estás a tiempo, ¡ÚLTIMAS VIVIENDAS DISPONIBLES! Promoción de obra nueva en construcción compuesta por 24 viviendas, plazas de parking y trasteros. Plantas bajas, primeras plantas y dúplex todas con terraza. Pisos de 1, 2 y 3 habitaciones, 1 y 2 baños desde 110.000¤ A continuación te presentamos este precioso ático dúplex de obra nueva con balcón y solarium. La vivienda dispone de 94.39m2 construidos y 70.83m2 útiles distribuidos de la siguiente forma: Primera planta con una excelente distribución ya que al entrar encontramos en un lado la zona de día y en el otro la habitación: -Salón comedor de 22.89m2 -Cocina americana equipada con vitrocerámica, horno y campaña extractora. Instalación para lavavajillas y lavadora. -Aseo de 2.62m2 -Habitación doble de 9.61m2 con salida a balcón -Balcón de 2.22m2 Segunda planta: -Habitación doble tipo suitte de 9.22m2 con salida a terraza-solarium -Habitación polivalente de 10.34m2 ideal como estudio, zona de tele-trabajo, de juegos... -Baño con plato de ducha de 3.01m2 -Solarium de 9.58m2 Los suelos son de parquet sintético flotante acabado madera y gres en cocina y baños, la carpintería interior de madera semi-lacada en blanco, la exterior de aluminio, practicables y batientes con cristales dobles. Puerta blindada Dispone de aire acondicionado y calefacción mediante splits y agua caliente sanitaria mediante aerotermia. Posibilidad de adquirir plaza de parquing y trastero en la misma finca. Precios a consultar. Fecha de entrega estimada a consultar ¡¡Sé el primer@ en elegir piso!! Llámanos cuanto antes y te informaremos en detalle. En este anuncio se muestran imágenes de estancias de varias viviendas como representación de las diferentes tipologías. La documentación gráfica es orientativa y exclusivamente informativa. No forma parte de ningún acuerdo contractual y el contenido visual y escrito puede ser modificado o substituido por exigencias técnicas de la dirección facultativa o de la empresa promotora derivadas del proyecto de edificación y de su ejecución.

Certificado energético

Consumo:
En proceso
Emisiones:
En proceso
Inmueble gestionado por:
1920 - Rafael de Casanovas, 15 - CALDERÓN LÓPEZ, MANUEL