95.000 €
(516 m2 - 184,11 €/m2)
Descripción
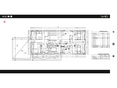
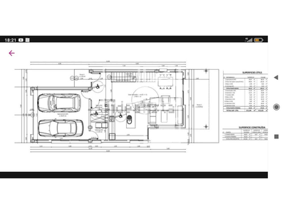
PARCELA URBANA EDIFICABLE, en zona Baronía de Cunit, muy cerca de todo tipo de establecimientos y servicios, la parcela de 516 metros cuadrados, es totalmente llana, hay alumbrado público, asfaltado, aceras, tiene una fachada de 15 metros por 35 metros de fondo, la parcela está vallada, dispone de un proyecto de obra para una vivienda unifamiliar de 2 plantas de 300 metros cuadrados aproximadamente, dicho proyecto costó 20.000 €, si la persona interesada compra la parcela con el proyecto, solamente pagaría 10.000 € adicionales por el proyecto, es una zona tranquila, a 12 minutos de la playa caminado. Gastos de ITP, escritura, registro, NO incluidos en el precio. PARCELA URBANA EDIFICABLE, en zona Baronía de Cunit, muy cerca de todo tipo de establecimientos y servicios, la parcela de 516 metros cuadrados, es totalmente llana, hay alumbrado público, asfaltado, aceras, tiene una fachada de 15 metros por 35 metros de fondo, la parcela está vallada, dispone de un proyecto de obra para una vivienda unifamiliar de 2 plantas de 300 metros cuadrados aproximadamente, dicho proyecto costó 20.000 €, si la persona interesada compra la parcela con el proyecto, solamente pagaría 10.000 € adicionales por el proyecto, es una zona tranquila, a 12 minutos de la playa caminado. Gastos de ITP, escritura, registro, NO incluidos en el precio.